西池袋にある“ぼやっとした”領域、大手デベロッパーが関わらない街づくりが生きるニシイケバレイ
2025年5月11日、ニシイケバレイで開かれた「OPEN TELAS!」の様子(以下、特記以外の写真は宮沢洋)
(画像1/17)
(画像2/17)
中核施設的な存在のカフェ「Chanoma」
(画像3/17)
改修前の木造住宅(写真:須藤剛建築設計事務所)
(画像4/17)
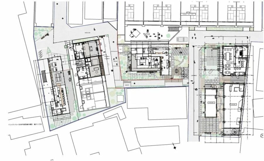
右端が今回新築された「TELAS」、その左側が先行して改修された3棟(資料:須藤剛建築設計事務所)
(画像5/17)
先陣を切ってオープンした「Chanoma(チャノマ)」の外観(写真:長谷川健太)
(画像6/17)
「Chanoma(チャノマ)」の土間と畳の部屋(写真:長谷川健太)
(画像7/17)
「和酒酔 処わく別誂」。筆者もたまにランチを食べに行く
(画像8/17)
「うつわ base FUURO」の前庭(写真:長谷川健太)
(画像9/17)
「うつわ base FUURO」の店内(写真:長谷川健太)
(画像10/17)
須藤剛氏。1980年埼玉県生まれ。2003年法政大学工学部土木工学科卒業。ジャムズ、北川原温建築都市研究所を経て、2012年須藤剛建築設計事務所設立(写真:須藤剛建築設計事務所)
(画像11/17)
(画像12/17)
外構の設計は須藤剛建築設計事務所、植栽は東根康仁景観調整事務所
(画像13/17)
(画像14/17)
(画像15/17)
(画像16/17)
南側の立面はどう見ても「終わった」という感じがしない…
(画像17/17)
西池袋にある“ぼやっとした”領域、大手デベロッパーが関わらない街づくりが生きるニシイケバレイ
この写真の記事を読む
次の記事へ
なぜ旧宅を壊して建て替えた?無名の建築家・岡秀世とは?静かな住宅街で静かな存在感を放つ熊谷守一美術館
池袋建築巡礼
1〜 16 17 18 19
関連記事
なぜ旧宅を壊して建て替えた?無名の建築家・岡秀世とは?静かな住宅街で静かな存在感を放つ熊谷守一美術館 【建築視点の万博】若手建築家20組を全紹介(海側エリア):素材と構成に注目、残念石からグネグネ樹脂壁まで 知る人ぞ知る丹下健三の傑作(2)近年まで「丹下建築」と知られていなかった理由とは 鮮やかな光の帯が差す聖堂、なぜか作品集にはないのに想像以上の美しさ! “恐怖のエスカレーター”作った理由と撤去した理由

本日の新着

一覧
ドイツ経済は「フリーフォール」状態で八方塞がり、財政拡大や反移民政策などでスタグフレーションのリスク
藤 和彦
予想超える雇用減、富裕層はさらに富み貧困層は…米国「K字型経済」が進行、支持層にバレたトランプ経済政策の矛盾
木村 正人
「エモグラム」記事盗用問題、1年前の毎日新聞に学べなかった産経新聞、経営難の2社で続いた不祥事は偶然ではない
【西田亮介の週刊時評】PV狙ってスベる新聞社、「戦略的撤退」が検討される時期にきた
西田 亮介
首都圏では「年収1000万円」でも安心してマンションを購入できない時代、高望みせずに買えるエリアはどこか
【JBpressセレクション】
山下 和之
フォロー機能について

フォロー機能とは、指定した著者の新着記事の通知を受け取れる機能です。
フォローした著者の新着記事があるとヘッダー(ページ上部)のフォロー記事アイコンに赤丸で通知されます。
フォローした著者の一覧はマイページで確認できます。
※フォロー機能は無料会員と有料会員の方のみ使用可能な機能です。


設定方法

記事ページのタイトル下にある「フォローする」アイコンをクリックするとその記事の著者をフォローできます。


確認方法

フォロー中の著者を確認したい場合、ヘッダーのマイページアイコンからマイページを開くことで確認できます。


解除方法

フォローを解除する際は、マイページのフォロー中の著者一覧から「フォロー中」アイコンをクリック、
または解除したい著者の記事を開き、タイトル下にある「フォロー中」アイコンをクリックすることで解除できます。